
Neu- und Erweiterungsbau Königin-Katharina-Stift

Entwicklung eines inklusiven Quartiers

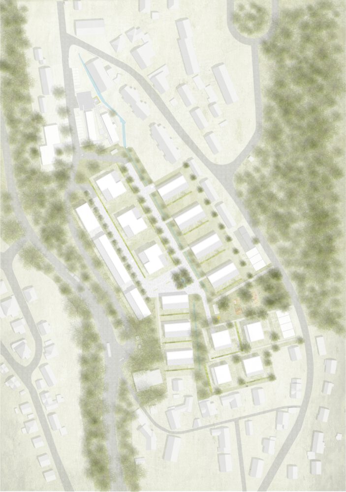
Neue Mitte Gaisbach

Eingangs- und Gastronomiegebäude Orangerie

Erschließungs- und Freiraumplanung

Neubau einer Wohnanlage

Wiederherstellung der Akropolis von Byrsa und Sanierung des Nationalmuseums von Karthago

Neubau Rathaus Steinheim und Gestaltung der Murrterrassen

Masterplan Helmut-Schmidt-Universität / Universität der Bundeswehr

Neubau Schulcampus Ost

Weissenhof 2027 – Städtebauliche Weiterentwicklung der Weissenhofsiedlung

„Landratsamt der Zukunft“

Neubau Innovationszentrum Green Tech

Neue Kita und Stadtteilhaus im Quartier Böckinger Straße

Umstrukturierung des ehemaligen Spinnereiareals an der Schützenstraße

Neubau von Pflegeheim und Seniorenwohnen

Umgestaltung des Stadtraums der B14

Freiraumplanerische Entwicklung der Ortsmitte

Bildungshaus Winkelwiese

Rosenstein – Ideen für den neuen Stadtteil Stuttgart

ADAC-Verkehrsübungsanlage am Solitude-Ring

Neuordnung Postareal Stuttgart-Untertürkheim

Grünes Erlebniszentrum

Walckerpark

Kindertagesstätte mit Familienzentrum

Neubau eines Grünen Betriebshofs – Städtebauliche Neuordnung Wingertsbuckel

Rinker-Areal

Ortsmitte Überauchen

„Urbanes Leben am Papierbach“ – Freiflächengestaltung auf dem Gelände der ehemaligen Pflugfabrik

Neuer Wohnungsbau im Quartier Heinrich-Held-Straße

Äußere Erschließung Wilhelmsburg, Ankunftsbereich bis Kehlturm

Quartiersmitte Lincoln-Siedlung

Neubau der Deutschen Botschaft

Mainzer Tor

Bahnhofsareal

Stadtteilplatz Wiley-Süd

Neubau Laborgebäude der Mikrobiologie auf dem Tierärztlichen Campus LMU

Städtebauliche und landschaftsplanerische Gestaltung des Campusgeländes

Umbau und Erweiterung der Fritz-Beck-Mittelschule

Neugestaltung Straßkirchener Mitte mit Rathausneubau

Einbau von Veranstaltungsräumen in die ehemalige Staatsdomäne Sonnefeld und Freianlagen

Hedwig-Dohm-Haus - Neu- und Umbau für Kinderbetreuung und studentische Verwaltung der Humboldt-Universität

Erweiterung der Maria-Ward-Schulen in Nürnberg und Neubau einer 4-fach Turnhalle

Stadtplätze Erlenmatt

EZA Areal - Steingau-Quartier

Neubau Kindertagesstätte und Freiflächengestaltung Schwetzinger Terrasse

Bildungscampus

Städtebaulicher Ideenwettbewerb „Mars-la-Tour-Straße“

Grünprojekt in Sigmaringen

Neubau eines Kirchenzentrums und einer Kindertageseinrichtung am Riedberg

Wohnen an der Finkenau

Haus der Pflege

Außenanlagen Architektenkammer Baden- Württemberg

Ortsmitte Westhausen

Neuanlage Friedhof mit Aussegnungshalle
